Технический перевод

 Операции с матрицами: программирование на C++

  

Главная

 

 

Часть 6. Расчет плоских статически определимых рам

 

6.1. Построение эпюр для плоских рам

 

Плоской рамой называется стержневая система, элементы которой жестко или шарнирно соединены между собой, нагруженная в своей плоскости.

Вертикально (или под наклоном) расположенные стержни рамы называются стойками, а горизонтальные - ригелями. Жесткость узлов устраняет возможность взаимного поворота скрепленных стержней, то есть в узловой точке углы между их осями остаются неизменными.

Как и многие другие системы, рамы делятся на статически определимые и статически неопределимые (рис.6.1, б,д,е).

Промежуточный шарнир снижает степень статической неопределимости рамы на величину m - 1, где m - число стержней, сходящихся в шарнире. Если m >2, то шарнир называется кратным (рис.6.1, д).

Для определения степени статической неопределимости плоской рамы можно воспользоваться формулой:

n = 3К-Ш,

где n - степень статической неопределимости; К - число замкнутых контуров в предположении полного отсутствия шарниров; Ш - число шарниров в пересчете на одиночные.

Основание (земля) рассматривается как стержень.

Для рамы (рис.6.1, б) имеем:

К=1;  Ш=0;

http://www.stroitmeh.ru/lect19.files/image002.gif

Для рамы (рис.10,д):

К=3;  Ш=3

http://www.stroitmeh.ru/lect19.files/image004.gif

В более простых случаях, когда отсутствуют замкнутые контуры и промежуточные шарниры, то есть когда используются комбинации тех же опор, что и в балках (жесткая заделка, шарнирно-подвижная и шарнирно-неподвижная опоры), для определения степени статической неопределимости используется “балочная” формула:

 http://www.stroitmeh.ru/lect19.files/image083.gif,

где r  - число неизвестных реакций; S - число уравнений статики ( для плоской рамы S=3).

В данной работе ограничимся рассмотрением простейших статически определимых рам трех видов:

1) с жесткой заделкой;

2) на двух шарнирных опорах (неподвижной и подвижной);

3) на двух шарнирно неподвижных опорах с простым промежуточным шарниром.

http://www.stroitmeh.ru/lect19.files/image084.jpg

Рис. 6.1

 

Из шести внутренних силовых факторов в сечениях плоской рамы в общем случае возникают три: продольная сила http://www.stroitmeh.ru/lect19.files/image085.gif; поперечная сила http://www.stroitmeh.ru/lect19.files/image086.gif; изгибающий момент http://www.stroitmeh.ru/lect19.files/image087.gif.

Правила знаков.  Для http://www.stroitmeh.ru/lect19.files/image085.gif и http://www.stroitmeh.ru/lect19.files/image086.gif сохраняются ранее принятые правила знаков.

http://www.stroitmeh.ru/lect19.files/image088.gif, если внешняя нагрузка, приложенная к рассматриваемой отсеченной части, вызывает в данном сечении растяжение  и http://www.stroitmeh.ru/lect19.files/image089.gif- в противном случае.

http://www.stroitmeh.ru/lect19.files/image090.gif, если внешняя нагрузка, приложенная к рассматриваемой отсеченной части, стремится повернуть данное сечение по часовой стрелке и http://www.stroitmeh.ru/lect19.files/image091.gif - в противном случае.

Ординаты эпюр http://www.stroitmeh.ru/lect19.files/image085.gif и http://www.stroitmeh.ru/lect19.files/image086.gif (как, впрочем и http://www.stroitmeh.ru/lect19.files/image087.gif) откладывают, как и обычно, перпендикулярно к оси элементов рамы. Иногда положительные ординаты http://www.stroitmeh.ru/lect19.files/image085.gif и http://www.stroitmeh.ru/lect19.files/image086.gif откладывают с внешней стороны рамы, а отрицательные – с внутренней, но рама часто имеет такую конфигурацию, при которой невозможно выделить внутреннюю и внешнюю стороны, поэтому в дальнейшем условимся: ординаты эпюр http://www.stroitmeh.ru/lect19.files/image085.gif и http://www.stroitmeh.ru/lect19.files/image086.gif откладываются в произвольную сторону, но обязательно указывается знак.

Для изгибающих моментов специального правила знаков нет, а при вычислении момента в любом сечении знак принимается произвольно. Но результат вычисленийвсегда откладывается со стороны сжатого волокна элемента рамы. При этом знак на эпюре http://www.stroitmeh.ru/lect19.files/image087.gif никогда не указывается. Такое условие полностью соответствует характеру построения эпюр http://www.stroitmeh.ru/lect19.files/image087.gif в балках, где в соответствии с принятым для изгибающих моментов правилом знаков (см. 1.7) ординаты эпюр http://www.stroitmeh.ru/lect19.files/image087.gif всегда оказывались расположенными со стороны сжатых волокон балки.

6.2. Рамы с жесткой заделкой

 

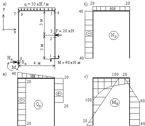
Пример 1. Рассмотрим жесткозащемленную плоскую раму (рис.6.2, а). В жесткой заделке рамы в общем случае нагружения возникают три опорные реакции: две силы (http://www.stroitmeh.ru/lect19.files/image092.gif и http://www.stroitmeh.ru/lect19.files/image093.gif ) и опорный момент (http://www.stroitmeh.ru/lect19.files/image094.gif). Для построения эпюр определение этих реакций не является безусловной необходимостью: расчет, как и в случае жесткозащемленнойбалки, можно вести от свободного конца, то есть всякий раз так выбирать отсеченную часть для рассматриваемого сечения, чтобы в нее не попадала опора с неизвестными опорными реакциями. Тем не менее, иногда целесообразно вычислить опорные реакции. Это позволяет проверить построение эпюр или облегчить их построение. Для вычисления реакций в жесткозащемленной раме используются три условия равновесия:

 http://www.stroitmeh.ru/lect19.files/image029.gif

Построим эпюры http://www.stroitmeh.ru/lect19.files/image095.gif для рассматриваемой рамы, не вычисляя опорные реакции.

Методика построения эпюр аналогична ранее рассмотренной для балок, т.е. сначала необходимо наметить характерные сечения. В дополнение к ранее указанным, в рамах характерными являются также сечения, расположенные бесконечно близко к жесткому узлу на всех элементах, сходящихся в этом узле.

 Построение эпюры http://www.stroitmeh.ru/lect19.files/image096.gif. Следуя установленным правилам, в рассматриваемой раме можно выделить 8 характерных сечений. Продольная сила в любом из них численно равна алгебраической сумме проекций всех сил, приложенных по одну сторону от рассматриваемого сечения, на продольную ось стержня. При этом следует учитывать, что положение продольной оси будет изменяться в зависимости от того, чему принадлежит рассматриваемое сечение - стойкам или ригелю.

 http://www.stroitmeh.ru/lect19.files/image034.gif 

Построение эпюры http://www.stroitmeh.ru/lect19.files/image086.gif. Поперечная сила в любом сечении численно равна алгебраической сумме проекций всех сил, приложенных по одну сторону от рассматриваемого сечения, на поперечную ось рамы. Положение поперечной оси также будет изменяться в зависимости от принадлежности данного сечения стойкам или ригелю. С учетом правила знаков, двигаясь от свободного конца к жесткой заделке,  получим для http://www.stroitmeh.ru/lect19.files/image086.gif:

http://www.stroitmeh.ru/lect19.files/image097.gif (проекция пары М на любую ось равна нулю);

http://www.stroitmeh.ru/lect19.files/image038.gif

Необходимо обратить внимание на тот факт, что http://www.stroitmeh.ru/lect19.files/image098.gif, т.е. что поперечная сила в верхних сечениях противоположных стоек от действия силы, приложенной к правой стойке (при заделке, расположенной слева, и наоборот) имеет противоположные знаки. Отчасти это можно объяснить противоположными направлениями оси y для сечений 4 и 7, но более строгое обоснование указанного равенства будет дано ниже.

Построение эпюры http://www.stroitmeh.ru/lect19.files/image087.gif. Изгибающий момент в любом сечении численно равен алгебраической сумме моментов всех нагрузок, приложенных по одну сторону от рассматриваемого сечения, относительно этого сечения (более строго: относительно оси x этого сечения). Обратим внимание на два важных замечания:

1) составляющая момента http://www.stroitmeh.ru/lect19.files/image087.gif от действия сосредоточенного момента М всегда одинакова и равна М;

2) под плечом силы всегда понимается длина перпендикуляра, опущенного из центра тяжести данного сечения на линию действия силы. Это означает, что, например, плечо силы F для сечений 4-7 одинаково и равно 3 м.

http://www.stroitmeh.ru/lect19.files/image041.gif

Рис. 6.2

 

Таким образом, для сечений 1-8 получим:

http://www.stroitmeh.ru/lect19.files/image043.gif (сжатым является правое волокно в сечениях 1-3, поэтому ордината отложена вправо от оси стойки);

http://www.stroitmeh.ru/lect19.files/image045.gif(знаки "+"  и "-" здесь имеют относительный характер; результирующий момент сжимает левые волокна в сечении 4 и нижние волокна в сечении 5, поэтому ордината "20" откладывается соответственно влево и вниз);

http://www.stroitmeh.ru/lect19.files/image047.gif (сжаты нижние волокна);

http://www.stroitmeh.ru/lect19.files/image049.gif(сжаты правые волокна);

http://www.stroitmeh.ru/lect19.files/image051.gif(сжаты левые волокна).

Между http://www.stroitmeh.ru/lect19.files/image053.gif в плоских рамах сохраняются те же зависимости, что и в балках, а именно:

http://www.stroitmeh.ru/lect19.files/image054.gif

Из этого следует, что правила контроля эпюр http://www.stroitmeh.ru/lect19.files/image012.gif и http://www.stroitmeh.ru/lect19.files/image014.gif остаются теми же, что и для балок .

Эпюры http://www.stroitmeh.ru/lect19.files/image033.gif в плоских рамах строятся наиболее просто и при отсутствии нагрузок, распределенных вдоль стержней, представляют собой графически отрезки прямых, параллельные осям стержней ( или совпадают с ними при http://www.stroitmeh.ru/lect19.files/image057.gif

Если проанализировать процесс построения эпюр (рис.6.2,б-г), то очевидно, что наиболее "сложно" вычислять ординаты в сечениях стержня, примыкающего к заделке( на рис.6.2,б-г это сечения 7 и 8). Как уже отмечалось, с этой целью иногда вычисляют реакции http://www.stroitmeh.ru/lect19.files/image059.gif и момент http://www.stroitmeh.ru/lect19.files/image028.gif.

При принятом для всей рамы направлении осей http://www.stroitmeh.ru/lect19.files/image061.gif (рис.6.2,а) уравнения равновесия имеют вид:

http://www.stroitmeh.ru/lect19.files/image062.gif

Полученный для каждой из величин http://www.stroitmeh.ru/lect19.files/image064.gif знак "+" говорит, что направления их были выбраны правильно.

После вычисления опорных реакций значения величин http://www.stroitmeh.ru/lect19.files/image066.gif в сечениях 7 и 8 (как, впрочем, и в любом другом) можно вычислять, двигаясь от жесткой заделки к свободному концу.

Например, для сечений 7 и 8:

http://www.stroitmeh.ru/lect19.files/image068.gif (знак "-" указывает на сжатие в этих сечениях с силой http://www.stroitmeh.ru/lect19.files/image026.gif);

http://www.stroitmeh.ru/lect19.files/image071.gif (т.к. реакция http://www.stroitmeh.ru/lect19.files/image024.gif стремится повернуть каждое из этих сечений против часовой стрелки.)

При сравнении величины http://www.stroitmeh.ru/lect19.files/image074.gif с ранее полученной величиной http://www.stroitmeh.ru/lect19.files/image076.gif видно, что

http://www.stroitmeh.ru/lect19.files/image040.gif , о чем уже говорилось выше.

http://www.stroitmeh.ru/lect19.files/image079.gif (сжаты левые волокна стойки);

http://www.stroitmeh.ru/lect19.files/image081.gif (сжаты правые волокна стойки).

Разумеется, результаты, получаемые для любого сечения при движении от свободного конца к жесткой заделке и при движении в обратном направлении одинаковы.